久末121-1貸工場・倉庫
「都筑IC」「東名川崎IC」近!駐車場5台分あり!3階建てで各フロア使い分けできます。
工場・倉庫・作業所・店舗事務所利用ご相談可能です!是非ご内見ください。
- 賃料
- 107万8,000円
- 坪単価
- 0.65万円
- 坪数/面積
- 166.26坪 /
549.63㎡
- 所在階
- -
- 管理費・共益費
- -
- 保証金
- 3ヶ月
- 礼金
- 1ヶ月
-
情報の見方
- ザ・ダイソー パシオス野川店
約1278m/16分
- Fit Care DEPOT上野川店
約1278m/16分
- SUPER MARKET FUJI(スーパーマーケットフジ) 上野川店
約1748m/22分
- ホームセンターコーナン 宮前上野川店
約1670m/21分
物件概要
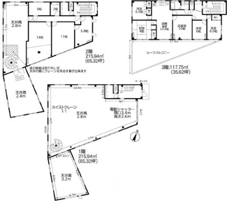
【倉庫】 物件番号:90108101 情報更新日:2025年11月14日 次回更新予定日:2025年11月28日所在地 神奈川県川崎市高津区久末121-1 交通 賃料/坪単価 107.8万円/0.65万円 坪数(面積) 166.26坪(549.63㎡) 管理費・共益費 - 敷金/礼金/保証金 0ヶ月/1ヶ月/3ヶ月 償却/敷引 20.00%/- 更新料 - 駐車場/月額料金 有(5台)/0円 権利金/雑費 -/- 保険加入/料金 有/- 保険名/保険期間 -/- 保証人代行義務 必加入 保証会社 - 保証会社詳細 - 向き - 築年月(築年数) 1984年 11月 (築41年) 契約期間 定期借家 5年 種別/構造 倉庫/鉄骨造 部屋/所在階/階建 -/-/3階建 現況 完成済み 引渡時期 即時 取引態様 一般媒介 物件番号 90108101 取引条件の有効期限 2025年11月28日 設備条件 - 事務所可
- 天井が高い
- 室内洗濯機置場
- ルーフバルコニー
- プロパンガス
- 公営水道
- 公共下水
- 電気有
備考 ・特別預託金11,000円/坪(倉庫の場合)・再契約可(再契約料賃料1カ月分)・内装の造作工事可能・キュービクルあり、現況渡しにつきすべて残置物 取扱会社 - 株式会社コタニ興業
- 神奈川県横浜市都筑区東山田町183番地
- TEL:045-593-3721
- 神奈川県知事 (9) 第17502号
※地図上に表示される物件の位置は付近住所に所在することを表すものであり、実際の物件所在地とは異なる場合がございます。
物件お問い合わせ














